Camperstraat 13 Leeuwarden
- Home
- Camperstraat 13
omschrijving
vraagprijs
€ 239.500 Kosten koper
Kenmerken
| Type | Woonhuis |
|---|---|
| Hoofdfunctie | Woonruimte |
| Bouwvorm | bestaande bouw |
| Woonoppervlakte | 109 m² |
| Energielabel | B |
| Bouwperiode | 1933 |
Refresh to make it work.

omschrijving
VOOR DEZE WONING ZIJN INMIDDELS ZOVEEL BEZICHTIGINGEN AANGEVRAAGD, DAT WE WERKEN MET EEN RESERVELIJST, NIEUWE AANVRAGEN KOMEN OP DEZE LIJST TE STAAN. ALS ER ANDERE AFSPRAKEN UITVALLEN, KUNNEN WE MET DE KANDIDATEN VAN DE RESERVELIJST EEN BEZICHTIGING INPLANNEN.
Op een leuke woonstand aan de oostkant van de stad en nabij het Dr. Zamenhofpark, ruime en gemoderniseerde tussenwoning. De woning biedt een vrije doorkijk vanuit de woonkamer richting het park en dat geeft een heerlijk vrij gevoel. De woning beschikt o.a. over 4 slaapkamers (waarvan 2 op de zolderverdieping), een moderne badkamer op de 1e verdieping en een half open keuken met inbouwapparatuur. Ook is er een grote dakkapel aan de achterzijde van de woning waardoor je aanzienlijk meer ruimte hebt. De achtertuin ligt op het westen en het zuiden en is bereikbaar via een steeg/achterom.
Op het dak liggen totaal 8 zonnepanelen (eigendom, gelegd in 2024). Daarnaast is de woning voorzien van dak-, vloer- en muurisolatie en is de woning volledig voorzien van HR isolatieglas. Het energielabel is B en is geldig tot en met 12 september 2035.
Op loopafstand van de woning bevinden zich scholen, een winkelcentrum maar ook het centrum van Leeuwarden is nabij. Kortom, de ideale starterswoning!
Bekijk de uitvoerige fotopresentatie voor een volledige indruk van deze prachtige woning. De plattegronden zijn beschikbaar in 2D en 3D en de maatvoeringen van alle vertrekken staan duidelijk vermeld. Interesse voor een bezichtiging? Maak een vrijblijvende afspraak via ons makelaarskantoor.
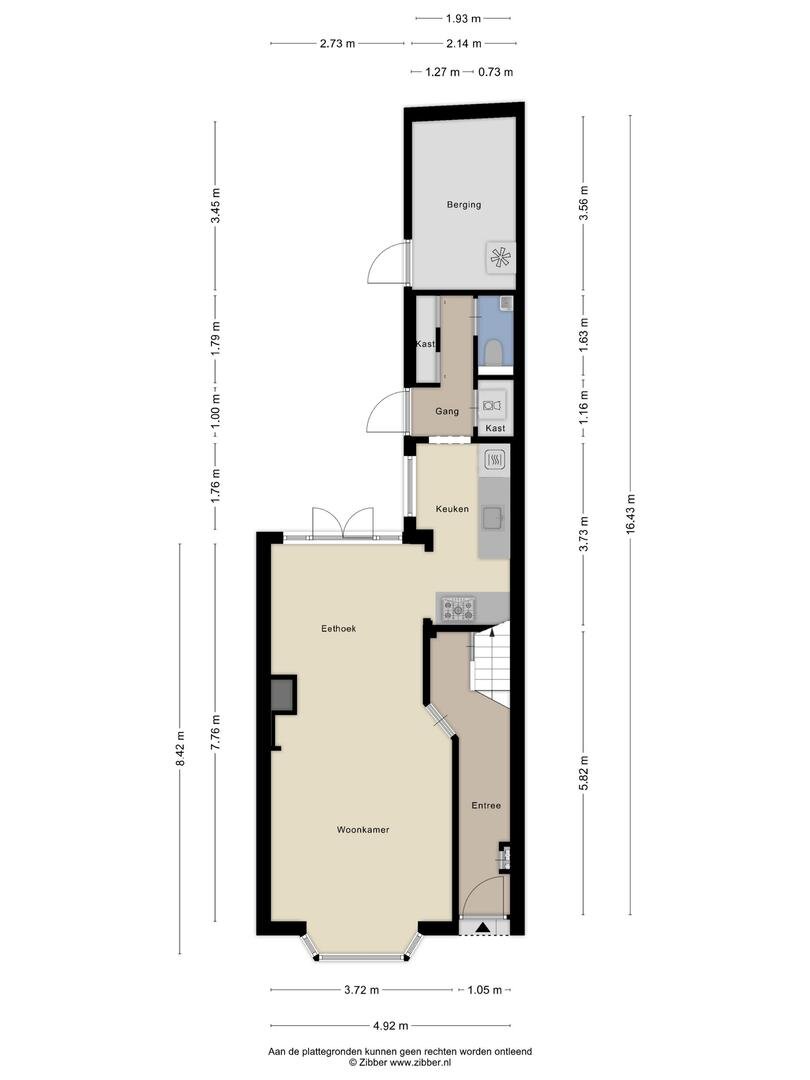
INDELINGSOMSCHRIJVING
Begane grond:
entree, gang, meterkast, woonkamer (circa 28 m²) met erker, massief houten vloerdelen, buitenzonwering (achterzijde) en open haard (momenteel niet in gebruik), half open keuken met in twee delen opgestelde keukeninrichting (2006) voorzien van diverse inbouwapparatuur (5-pits gaskookplaat, afzuigkap, vaatwasser (2024), koelkast en oven), bijkeuken met vaste kast, wasmachineruimte en toilet (vrijhangend) met fonteintje. Aangebouwde stenen buitenberging voorzien van elektra. De achtertuin met achterom is op het westen gelegen.
1e verdieping:
overloop, toegang tot droogplat, 1e slaapkamer (circa 12 m²), 2e slaapkamer (circa 9 m²) met wastafelcombinatie, badkamer met tweede toilet, douchecabine en dubbele wastafel, via spiltrap naar:
2e verdieping:
overloop, cv-ruimte, 3e slaapkamer (circa 12 m²) met laminaat vloer en grote dakkapel, 4e slaapkamer (circa 7 m²) met laminaat vloer, dakvenster en wastafelcombinatie, bergingruimte achter knieschotten over de gehele breedte van de woning.
Bijzonderheden:
- verwarming en warmwater d.m.v. HR-combiketel (bjr. 2020)
- vernieuwde elektrische installatie: 8 groepen en 2 aardlekschakelaars
- totaal 8 zonnepanelen (2024)
- voorzien van vloer- en dakisolatie en dubbele beglazing
- spouwmuurisolatie in 2022 uitgevoerd
- begane grond vloer is in 2010 volledig vernieuwd
- hellend dak gerenoveerd in 2024 (waterkerende folie, nieuwe panlatten en nokvorsten hersteld)
- aansluiting op diepriool
- gelegen op 103 m² eigen grond
- voldoende (gratis) parkeergelegenheid in directe omgeving
- een keurige woning waar je zo in kan!
DISCLAIMER
De verkoopinformatie is door ons met de nodige zorgvuldigheid samengesteld. Onzerzijds wordt echter geen enkele aansprakelijkheid aanvaard voor enige onvolledigheid, onjuistheid of anderszins, dan wel de gevolgen daarvan. Aan de informatie kunnen geen rechten worden ontleend.
TOELICHTINGSCLAUSULE
De Meetinstructie is gebaseerd op de NEN2580. De Meetinstructie is bedoeld om een meer eenduidige manier van meten toe te passen voor het geven van een indicatie van de gebruiksoppervlakte. De Meetinstructie sluit verschillen in meetuitkomsten niet volledig uit, door bijvoorbeeld interpretatieverschillen, afrondingen of beperkingen bij het uitvoeren van de meting.
Op een leuke woonstand aan de oostkant van de stad en nabij het Dr. Zamenhofpark, ruime en gemoderniseerde tussenwoning. De woning biedt een vrije doorkijk vanuit de woonkamer richting het park en dat geeft een heerlijk vrij gevoel. De woning beschikt o.a. over 4 slaapkamers (waarvan 2 op de zolderverdieping), een moderne badkamer op de 1e verdieping en een half open keuken met inbouwapparatuur. Ook is er een grote dakkapel aan de achterzijde van de woning waardoor je aanzienlijk meer ruimte hebt. De achtertuin ligt op het westen en het zuiden en is bereikbaar via een steeg/achterom.
Op het dak liggen totaal 8 zonnepanelen (eigendom, gelegd in 2024). Daarnaast is de woning voorzien van dak-, vloer- en muurisolatie en is de woning volledig voorzien van HR isolatieglas. Het energielabel is B en is geldig tot en met 12 september 2035.
Op loopafstand van de woning bevinden zich scholen, een winkelcentrum maar ook het centrum van Leeuwarden is nabij. Kortom, de ideale starterswoning!
Bekijk de uitvoerige fotopresentatie voor een volledige indruk van deze prachtige woning. De plattegronden zijn beschikbaar in 2D en 3D en de maatvoeringen van alle vertrekken staan duidelijk vermeld. Interesse voor een bezichtiging? Maak een vrijblijvende afspraak via ons makelaarskantoor.
INDELINGSOMSCHRIJVING
Begane grond:
entree, gang, meterkast, woonkamer (circa 28 m²) met erker, massief houten vloerdelen, buitenzonwering (achterzijde) en open haard (momenteel niet in gebruik), half open keuken met in twee delen opgestelde keukeninrichting (2006) voorzien van diverse inbouwapparatuur (5-pits gaskookplaat, afzuigkap, vaatwasser (2024), koelkast en oven), bijkeuken met vaste kast, wasmachineruimte en toilet (vrijhangend) met fonteintje. Aangebouwde stenen buitenberging voorzien van elektra. De achtertuin met achterom is op het westen gelegen.
1e verdieping:
overloop, toegang tot droogplat, 1e slaapkamer (circa 12 m²), 2e slaapkamer (circa 9 m²) met wastafelcombinatie, badkamer met tweede toilet, douchecabine en dubbele wastafel, via spiltrap naar:
2e verdieping:
overloop, cv-ruimte, 3e slaapkamer (circa 12 m²) met laminaat vloer en grote dakkapel, 4e slaapkamer (circa 7 m²) met laminaat vloer, dakvenster en wastafelcombinatie, bergingruimte achter knieschotten over de gehele breedte van de woning.
Bijzonderheden:
- verwarming en warmwater d.m.v. HR-combiketel (bjr. 2020)
- vernieuwde elektrische installatie: 8 groepen en 2 aardlekschakelaars
- totaal 8 zonnepanelen (2024)
- voorzien van vloer- en dakisolatie en dubbele beglazing
- spouwmuurisolatie in 2022 uitgevoerd
- begane grond vloer is in 2010 volledig vernieuwd
- hellend dak gerenoveerd in 2024 (waterkerende folie, nieuwe panlatten en nokvorsten hersteld)
- aansluiting op diepriool
- gelegen op 103 m² eigen grond
- voldoende (gratis) parkeergelegenheid in directe omgeving
- een keurige woning waar je zo in kan!
DISCLAIMER
De verkoopinformatie is door ons met de nodige zorgvuldigheid samengesteld. Onzerzijds wordt echter geen enkele aansprakelijkheid aanvaard voor enige onvolledigheid, onjuistheid of anderszins, dan wel de gevolgen daarvan. Aan de informatie kunnen geen rechten worden ontleend.
TOELICHTINGSCLAUSULE
De Meetinstructie is gebaseerd op de NEN2580. De Meetinstructie is bedoeld om een meer eenduidige manier van meten toe te passen voor het geven van een indicatie van de gebruiksoppervlakte. De Meetinstructie sluit verschillen in meetuitkomsten niet volledig uit, door bijvoorbeeld interpretatieverschillen, afrondingen of beperkingen bij het uitvoeren van de meting.
Helaas..
Dit object is niet meer beschikbaar
Voor meer informatie kunt u contact met ons opnemen.
Bel
ons op 058 760 0850 of WhatsApp via 06-51604155 voor direct contact.



