Schuilenburg 34 Leeuwarden
- Home
- Schuilenburg 34
omschrijving
vraagprijs
€ 219.500 Kosten koper
Kenmerken
| Type | Appartement |
|---|---|
| Hoofdfunctie | Woonruimte |
| Bouwvorm | bestaande bouw |
| Woonoppervlakte | 69 m² |
| Energielabel | A |
| Bouwperiode | 1981 |
Refresh to make it work.

omschrijving
Gelegen op een mooie locatie in de woonwijk "Camminghaburen" goed onderhouden en onlangs compleet gerenoveerde 3-kamer appartement op de begane grond met een eigen achtertuin op het zonnige zuidwesten! Er is een ruime L-vormige woonkamer met uitzicht op de tuin. De badkamer en de wanden en vloeren zijn strak en modern afgewerkt. In totaal zijn er 2 ruime slaapkamers, een open keuken, moderne badkamer en een separate toiletruimte. Direct aan het appartement is een eigen berging aangebouwd. Ideaal voor het stallen van fietsen etc.
Het is een energiezuinig appartement want er is muur- en vloerisolatie en isolatieglas. Het appartement wordt verwarmd door een eigen CV ketel uit 2023. Het energielabel is A.
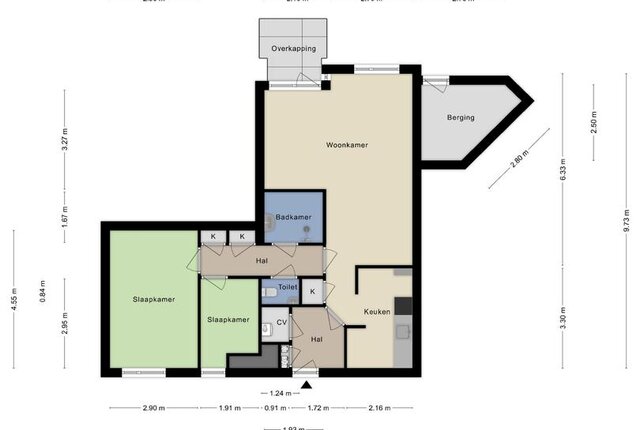
Bekijk de uitvoerige fotopresentatie voor een complete indruk van dit mooie appartement. De plattegrond geeft een duidelijk beeld van de afmetingen per vertrek. Bezichtiging aanvragen? Bel dan met ons NVM makelaarskantoor of reageer via franshettema.nl
Indelingsomschrijving
overdekte entree/hal met meterkast. Aan de straatzijde open keuken met inbouwapparatuur De tuingerichte L-vormige woonkamer (tuingericht) is ruim van opzet en heeft een terrasdeur naar de achtertuin welke is gesitueerd op het zuidwesten en direct ernaast ligt de eigen (fietsen)berging! Vanuit zijn de beide slaapkamers bereikbaar, waarvan 1 grote master bedroom en een kleinere werk/studeerkamer. Separate toiletruimte en een gemoderniseerde badkamer met douche en vaste wastafel.
Kortom, een ruim en modern gelijkvloers appartement met meer dan voldoende leefruimte en een heerlijke tuin!
Algemeen:
- woonoppervlakte 69m2 en inhoud 248m3
- de diepe achtertuin is gelegen op het zuidwesten
- intern gemoderniseerd in 2021 (keuken, badkamer, wand- en vloerafwerking)
- eigen CV ketel (Intergas, bjr. 2023)
- energielabel A
- VvE bijdrage is € 132,- per maand
Deze verkoopinformatie is door ons met de nodige zorgvuldigheid samengesteld. Onzerzijds wordt echter geen enkele aansprakelijkheid aanvaard voor enige onvolledigheid, onjuistheid of anderszins, dan wel de gevolgen daarvan. Aan de informatie kunnen geen rechten worden ontleend.
Toelichtingsclausule NEN2580. De Meetinstructie is gebaseerd op de NEN2580. De Meetinstructie is bedoeld om een meer eenduidige manier van meten toe te passen voor het geven van een indicatie van de gebruiksoppervlakte. De Meetinstructie sluit verschillen in meetuitkomsten niet volledig uit, door bijvoorbeeld interpretatieverschillen, afrondingen of beperkingen bij het uitvoeren van de meting.
Het is een energiezuinig appartement want er is muur- en vloerisolatie en isolatieglas. Het appartement wordt verwarmd door een eigen CV ketel uit 2023. Het energielabel is A.
Bekijk de uitvoerige fotopresentatie voor een complete indruk van dit mooie appartement. De plattegrond geeft een duidelijk beeld van de afmetingen per vertrek. Bezichtiging aanvragen? Bel dan met ons NVM makelaarskantoor of reageer via franshettema.nl
Indelingsomschrijving
overdekte entree/hal met meterkast. Aan de straatzijde open keuken met inbouwapparatuur De tuingerichte L-vormige woonkamer (tuingericht) is ruim van opzet en heeft een terrasdeur naar de achtertuin welke is gesitueerd op het zuidwesten en direct ernaast ligt de eigen (fietsen)berging! Vanuit zijn de beide slaapkamers bereikbaar, waarvan 1 grote master bedroom en een kleinere werk/studeerkamer. Separate toiletruimte en een gemoderniseerde badkamer met douche en vaste wastafel.
Kortom, een ruim en modern gelijkvloers appartement met meer dan voldoende leefruimte en een heerlijke tuin!
Algemeen:
- woonoppervlakte 69m2 en inhoud 248m3
- de diepe achtertuin is gelegen op het zuidwesten
- intern gemoderniseerd in 2021 (keuken, badkamer, wand- en vloerafwerking)
- eigen CV ketel (Intergas, bjr. 2023)
- energielabel A
- VvE bijdrage is € 132,- per maand
Deze verkoopinformatie is door ons met de nodige zorgvuldigheid samengesteld. Onzerzijds wordt echter geen enkele aansprakelijkheid aanvaard voor enige onvolledigheid, onjuistheid of anderszins, dan wel de gevolgen daarvan. Aan de informatie kunnen geen rechten worden ontleend.
Toelichtingsclausule NEN2580. De Meetinstructie is gebaseerd op de NEN2580. De Meetinstructie is bedoeld om een meer eenduidige manier van meten toe te passen voor het geven van een indicatie van de gebruiksoppervlakte. De Meetinstructie sluit verschillen in meetuitkomsten niet volledig uit, door bijvoorbeeld interpretatieverschillen, afrondingen of beperkingen bij het uitvoeren van de meting.
Helaas..
Dit object is niet meer beschikbaar
Voor meer informatie kunt u contact met ons opnemen.
Bel
ons op 058 760 0850 of WhatsApp via 06-51604155 voor direct contact.

