Europaplein 41 c Leeuwarden
- Home
- Europaplein 41 c
omschrijving
vraagprijs
€ 219.500 Kosten koper
Kenmerken
| Type | Appartement |
|---|---|
| Hoofdfunctie | Woonruimte |
| Bouwvorm | bestaande bouw |
| Woonoppervlakte | 80 m² |
| Energielabel | C |
| Bouwperiode | 1967 |
Refresh to make it work.

omschrijving
Gelegen op een levendige locatie aan het Europaplein bieden wij dit aantrekkelijke HOEKAPPARTEMENT te koop aan. Het appartement verkeert in een goede staat van onderhoud. Ook is de buitenkant van het appartementencomplex in 2024-2025 volledig gemoderniseerd. Het appartement bevindt zich op de 4e woonlaag van het appartementencomplex “Baensein” en biedt een combinatie van comfort en een fraai uitzicht richting de binnenstad van Leeuwarden!
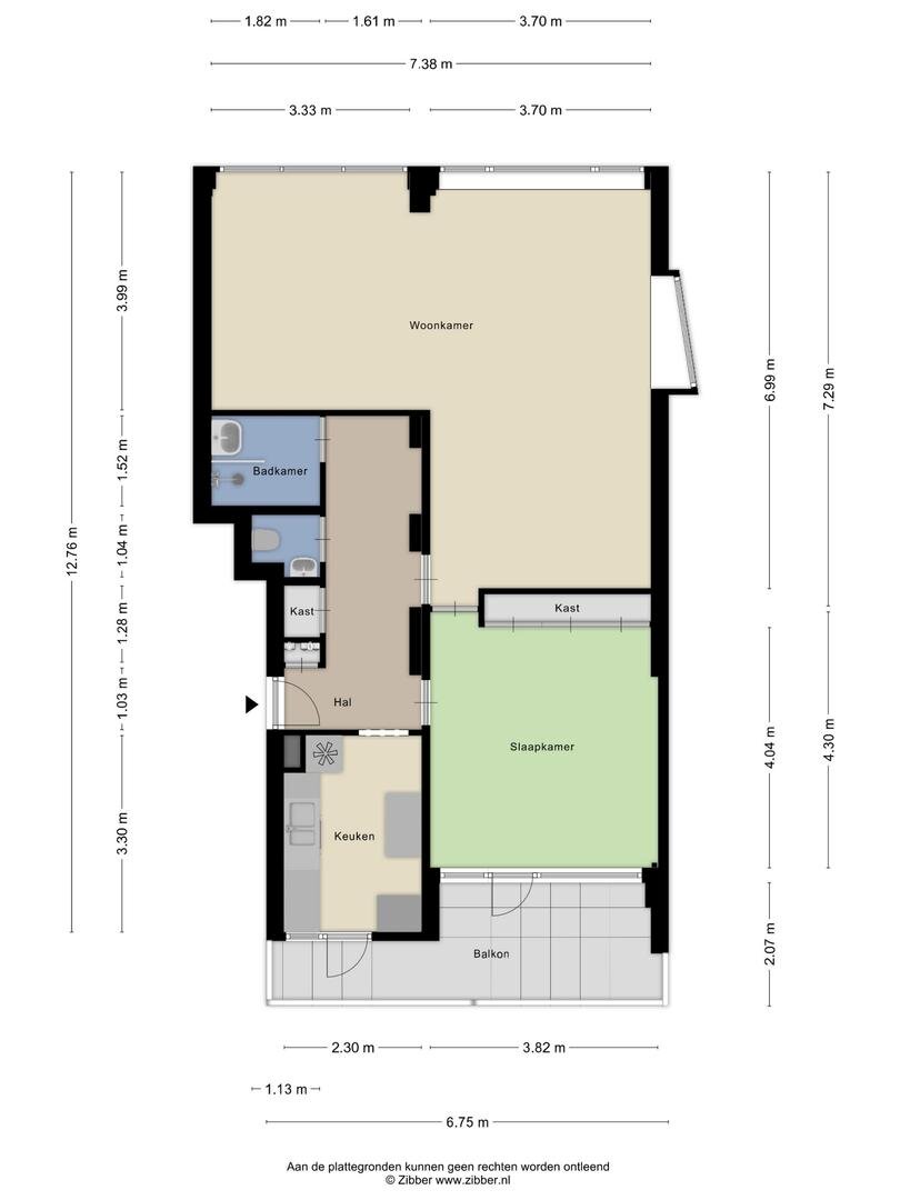
Het appartement is instapklaar en beschikt bovendien over een eigen berging op de begane grond. De lichte en ruime L-vormige woonkamer kijkt uit over het Europaplein. Aan de achterzijde vindt u een royaal balkon, waar u in alle rust kunt genieten van het uitzicht. De royale slaapkamer en de nette keuken bevinden zich aan de achterkant van het appartement. Verwarming vindt plaats via een eigen CV-ketel (2019). Het energielabel is C.
Bekijk de uitvoerige fotopresentatie voor een volledige indruk van deze prachtige woning. De plattegronden zijn beschikbaar in 2D en 3D en de maatvoeringen van alle vertrekken staan duidelijk vermeld. Interesse voor een bezichtiging? Maak een vrijblijvende afspraak via ons makelaarskantoor.
INDELINGSOMSCHRIJVING
Entree appartementencomplex Baensein: Voorzien van een intercominstallatie, brievenbussen en toegang tot de berging. De centrale hal beschikt over een trappenhuis en een lift.
Woningentree op de vierde verdieping: hal met meterkast en provisiekast, toilet en badkamer. Royale L-vormige woonkamer met mooi uitzicht en veel zijlichtinval en een eethoek. Slaapkamer met deur naar het balkon met prachtig uitzicht over de binnenstad. Dichte keuken met diverse inbouwapparatuur en deur naar het balkon.
KENMERKEN
- Fraai uitzicht over het levendige Europaplein en vanaf de achterkant over de "Vosseparkwijk"
- Volledig voorzien van isolatieglas
- Verwarming via eigen CV-installatie (2019)
- Energielabel C
- Het gebouw is in 2023 v.w.b. de gevels en kozijnen gemoderniseerd inclusief elektrische zonwering
- Gelegen op de 4e woonlaag, bereikbaar met trappenhuis en lift
- Eigen berging op de begane grond
- Vve bijdrage bedraagt €400,- p.m. incl tijdelijke verhoging ivm groot onderhoud gevels, isolatie en energiezuinigheid
COMPLEX
Het appartementencomplex “Baensein” telt 32 woningen en beschikt over een afgesloten entree met video-intercom. Het gebouw verkeert in goede staat van onderhoud en is uitgerust met zowel een lift als een trappenhuis, wat bijdraagt aan comfortabel wonen.
DISCLAIMER
De verkoopinformatie is door ons met de nodige zorgvuldigheid samengesteld. Onzerzijds wordt echter geen enkele aansprakelijkheid aanvaard voor enige onvolledigheid, onjuistheid of anderszins, dan wel de gevolgen daarvan. Aan de informatie kunnen geen rechten worden ontleend.
TOELICHTINGSCLAUSULE
De Meetinstructie is gebaseerd op de NEN2580. De Meetinstructie is bedoeld om een meer eenduidige manier van meten toe te passen voor het geven van een indicatie van de gebruiksoppervlakte. De Meetinstructie sluit verschillen in meetuitkomsten niet volledig uit, door bijvoorbeeld interpretatieverschillen, afrondingen of beperkingen bij het uitvoeren van de meting.
OUDERDOMSCLAUSULE EN BANKGARANTIE.
In de koopakte wordt bij woningen die ouder zijn dan 30 altijd de ouderdomsclausule opgenomen. Dat betekent onder andere dat u weet dat u een ouder huis koopt en dat u de bouwkundige staat niet kunt vergelijken met nieuwe(re) woningen. De onderzoeksplicht van de koper gaat verder dan de mededelingsplicht van de verkoper. U heeft altijd de mogelijkheid de woning bouwkundig te keuren of u te laten bijstaan door een officiele aankoopmakelaar teneinde u te adviseren. Nadat de koopakte getekend is dient er een waarborgsom of bankgarantie door de koper te worden gesteld. Informeer bij uw bank of hypotheekadviseur want u kunt dit samen met uw hypotheekaanvraag regelen.
Het appartement is instapklaar en beschikt bovendien over een eigen berging op de begane grond. De lichte en ruime L-vormige woonkamer kijkt uit over het Europaplein. Aan de achterzijde vindt u een royaal balkon, waar u in alle rust kunt genieten van het uitzicht. De royale slaapkamer en de nette keuken bevinden zich aan de achterkant van het appartement. Verwarming vindt plaats via een eigen CV-ketel (2019). Het energielabel is C.
Bekijk de uitvoerige fotopresentatie voor een volledige indruk van deze prachtige woning. De plattegronden zijn beschikbaar in 2D en 3D en de maatvoeringen van alle vertrekken staan duidelijk vermeld. Interesse voor een bezichtiging? Maak een vrijblijvende afspraak via ons makelaarskantoor.
INDELINGSOMSCHRIJVING
Entree appartementencomplex Baensein: Voorzien van een intercominstallatie, brievenbussen en toegang tot de berging. De centrale hal beschikt over een trappenhuis en een lift.
Woningentree op de vierde verdieping: hal met meterkast en provisiekast, toilet en badkamer. Royale L-vormige woonkamer met mooi uitzicht en veel zijlichtinval en een eethoek. Slaapkamer met deur naar het balkon met prachtig uitzicht over de binnenstad. Dichte keuken met diverse inbouwapparatuur en deur naar het balkon.
KENMERKEN
- Fraai uitzicht over het levendige Europaplein en vanaf de achterkant over de "Vosseparkwijk"
- Volledig voorzien van isolatieglas
- Verwarming via eigen CV-installatie (2019)
- Energielabel C
- Het gebouw is in 2023 v.w.b. de gevels en kozijnen gemoderniseerd inclusief elektrische zonwering
- Gelegen op de 4e woonlaag, bereikbaar met trappenhuis en lift
- Eigen berging op de begane grond
- Vve bijdrage bedraagt €400,- p.m. incl tijdelijke verhoging ivm groot onderhoud gevels, isolatie en energiezuinigheid
COMPLEX
Het appartementencomplex “Baensein” telt 32 woningen en beschikt over een afgesloten entree met video-intercom. Het gebouw verkeert in goede staat van onderhoud en is uitgerust met zowel een lift als een trappenhuis, wat bijdraagt aan comfortabel wonen.
DISCLAIMER
De verkoopinformatie is door ons met de nodige zorgvuldigheid samengesteld. Onzerzijds wordt echter geen enkele aansprakelijkheid aanvaard voor enige onvolledigheid, onjuistheid of anderszins, dan wel de gevolgen daarvan. Aan de informatie kunnen geen rechten worden ontleend.
TOELICHTINGSCLAUSULE
De Meetinstructie is gebaseerd op de NEN2580. De Meetinstructie is bedoeld om een meer eenduidige manier van meten toe te passen voor het geven van een indicatie van de gebruiksoppervlakte. De Meetinstructie sluit verschillen in meetuitkomsten niet volledig uit, door bijvoorbeeld interpretatieverschillen, afrondingen of beperkingen bij het uitvoeren van de meting.
OUDERDOMSCLAUSULE EN BANKGARANTIE.
In de koopakte wordt bij woningen die ouder zijn dan 30 altijd de ouderdomsclausule opgenomen. Dat betekent onder andere dat u weet dat u een ouder huis koopt en dat u de bouwkundige staat niet kunt vergelijken met nieuwe(re) woningen. De onderzoeksplicht van de koper gaat verder dan de mededelingsplicht van de verkoper. U heeft altijd de mogelijkheid de woning bouwkundig te keuren of u te laten bijstaan door een officiele aankoopmakelaar teneinde u te adviseren. Nadat de koopakte getekend is dient er een waarborgsom of bankgarantie door de koper te worden gesteld. Informeer bij uw bank of hypotheekadviseur want u kunt dit samen met uw hypotheekaanvraag regelen.
Plan een bezichtiging
voor: Europaplein 41 c
Bel ons op 058 760 0850 of WhatsApp via 06-51604155 voor direct contact.
Of laat uw gegevens achter en wij nemen zo snel mogelijk contact met u op.

