Europaplein 41 e Leeuwarden
- Home
- Europaplein 41 e
omschrijving
vraagprijs
€ 219.500 Kosten koper
Kenmerken
| Type | Appartement |
|---|---|
| Hoofdfunctie | Woonruimte |
| Bouwvorm | bestaande bouw |
| Woonoppervlakte | 80 m² |
| Energielabel | C |
| Bouwperiode | 1967 |
Refresh to make it work.

omschrijving
Op een levendige locatie aan het Europaplein staat dit aantrekkelijke HOEKAPPARTEMENT te koop. Gelegen op de 5e woonlaag van het appartementencomplex “Baensein”, geniet u hier van zowel comfort als een prachtig uitzicht over het levendige Europaplein en richting binnenstad van Leeuwarden. Het appartement is in goede staat en ook is het appartementencomplex in 2024-2025 v.w.b. de buitengevels en kozijnen volledig gemoderniseerd.
Het appartement is instapklaar en beschikt daarnaast over een eigen berging op de begane grond. De lichte en ruime woonkamer biedt een vrij uitzicht over het Europaplein, terwijl u aan de achterzijde beschikt over een royaal balkon waar u in alle rust kunt genieten van het uitzicht over de " Vosseparkwijk". Het appartement wordt verwarmd via een CV-ketel en heeft energielabel C.
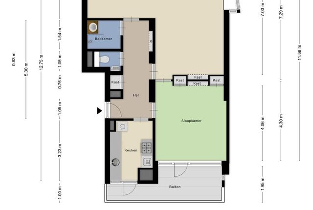
Bekijk de uitvoerige fotopresentatie voor een volledige indruk van dit prachtige appartement. De plattegronden zijn beschikbaar in 2D en 3D en de maatvoeringen van alle vertrekken staan duidelijk vermeld. Interesse voor een bezichtiging? Maak een vrijblijvende afspraak via ons makelaarskantoor.
INDELINGSOMSCHRIJVING
Entree appartementencomplex Baensein: Voorzien van een intercominstallatie, brievenbussen en toegang tot de berging. De centrale hal beschikt over een trappenhuis en een lift.
Woningentree op de 5e woonlaag: hal met provisiekast en meterkast, toilet ruimte en badkamer. L-vormige woonkamer met mooi uitzicht en veel zijlichtinval en een eethoek. Royale slaapkamer met toegang tot het balkon met een prachtig uitzicht richting de binnenstad van Leeuwarden. Dichte goed onderhouden keuken met diverse inbouwapparatuur en toegang tot het balkon.
KENMERKEN
- Fraai uitzicht over het levendige Europaplein en vanaf de achterkant over de "Vosseparkwijk"
- Volledig voorzien van isolatieglas
- Verwarming via CV-installatie
- Energielabel C
- Het gebouw is in 2024-2025 v.w.b. de gevels en kozijnen gemoderniseerd inclusief elektrische zonwering
- Gelegen op de 5e woonlaag, bereikbaar met trappenhuis en lift
- Eigen berging op de begane grond
- Vve bijdrage bedraagt €400,00 p/m incl tijdelijke verhoging ivm groot onderhoud gevels, isolatie en energiezuinigheid
COMPLEX
“Baensein” bestaat uit 32 appartementen en beschikt over een afgesloten entree met video-intercomsysteem. Het gebouw is goed onderhouden en voorzien van zowel een lift als een trappenhuis, wat zorgt voor optimaal wooncomfort.
DISCLAIMER
De verkoopinformatie is door ons met de nodige zorgvuldigheid samengesteld. Onzerzijds wordt echter geen enkele aansprakelijkheid aanvaard voor enige onvolledigheid, onjuistheid of anderszins, dan wel de gevolgen daarvan. Aan de informatie kunnen geen rechten worden ontleend.
TOELICHTINGSCLAUSULE
De Meetinstructie is gebaseerd op de NEN2580. De Meetinstructie is bedoeld om een meer eenduidige manier van meten toe te passen voor het geven van een indicatie van de gebruiksoppervlakte. De Meetinstructie sluit verschillen in meetuitkomsten niet volledig uit, door bijvoorbeeld interpretatieverschillen, afrondingen of beperkingen bij het uitvoeren van de meting.
OUDERDOMSCLAUSULE EN BANKGARANTIE.
In de koopakte wordt bij woningen die ouder zijn dan 30 altijd de ouderdomsclausule opgenomen. Dat betekent onder andere dat u weet dat u een ouder huis koopt en dat u de bouwkundige staat niet kunt vergelijken met nieuwe(re) woningen. De onderzoeksplicht van de koper gaat verder dan de mededelingsplicht van de verkoper. U heeft altijd de mogelijkheid de woning bouwkundig te keuren of u te laten bijstaan door een officiele aankoopmakelaar teneinde u te adviseren. Nadat de koopakte getekend is dient er een waarborgsom of bankgarantie door de koper te worden gesteld. Informeer bij uw bank of hypotheekadviseur want u kunt dit samen met uw hypotheekaanvraag regelen.
Het appartement is instapklaar en beschikt daarnaast over een eigen berging op de begane grond. De lichte en ruime woonkamer biedt een vrij uitzicht over het Europaplein, terwijl u aan de achterzijde beschikt over een royaal balkon waar u in alle rust kunt genieten van het uitzicht over de " Vosseparkwijk". Het appartement wordt verwarmd via een CV-ketel en heeft energielabel C.
Bekijk de uitvoerige fotopresentatie voor een volledige indruk van dit prachtige appartement. De plattegronden zijn beschikbaar in 2D en 3D en de maatvoeringen van alle vertrekken staan duidelijk vermeld. Interesse voor een bezichtiging? Maak een vrijblijvende afspraak via ons makelaarskantoor.
INDELINGSOMSCHRIJVING
Entree appartementencomplex Baensein: Voorzien van een intercominstallatie, brievenbussen en toegang tot de berging. De centrale hal beschikt over een trappenhuis en een lift.
Woningentree op de 5e woonlaag: hal met provisiekast en meterkast, toilet ruimte en badkamer. L-vormige woonkamer met mooi uitzicht en veel zijlichtinval en een eethoek. Royale slaapkamer met toegang tot het balkon met een prachtig uitzicht richting de binnenstad van Leeuwarden. Dichte goed onderhouden keuken met diverse inbouwapparatuur en toegang tot het balkon.
KENMERKEN
- Fraai uitzicht over het levendige Europaplein en vanaf de achterkant over de "Vosseparkwijk"
- Volledig voorzien van isolatieglas
- Verwarming via CV-installatie
- Energielabel C
- Het gebouw is in 2024-2025 v.w.b. de gevels en kozijnen gemoderniseerd inclusief elektrische zonwering
- Gelegen op de 5e woonlaag, bereikbaar met trappenhuis en lift
- Eigen berging op de begane grond
- Vve bijdrage bedraagt €400,00 p/m incl tijdelijke verhoging ivm groot onderhoud gevels, isolatie en energiezuinigheid
COMPLEX
“Baensein” bestaat uit 32 appartementen en beschikt over een afgesloten entree met video-intercomsysteem. Het gebouw is goed onderhouden en voorzien van zowel een lift als een trappenhuis, wat zorgt voor optimaal wooncomfort.
DISCLAIMER
De verkoopinformatie is door ons met de nodige zorgvuldigheid samengesteld. Onzerzijds wordt echter geen enkele aansprakelijkheid aanvaard voor enige onvolledigheid, onjuistheid of anderszins, dan wel de gevolgen daarvan. Aan de informatie kunnen geen rechten worden ontleend.
TOELICHTINGSCLAUSULE
De Meetinstructie is gebaseerd op de NEN2580. De Meetinstructie is bedoeld om een meer eenduidige manier van meten toe te passen voor het geven van een indicatie van de gebruiksoppervlakte. De Meetinstructie sluit verschillen in meetuitkomsten niet volledig uit, door bijvoorbeeld interpretatieverschillen, afrondingen of beperkingen bij het uitvoeren van de meting.
OUDERDOMSCLAUSULE EN BANKGARANTIE.
In de koopakte wordt bij woningen die ouder zijn dan 30 altijd de ouderdomsclausule opgenomen. Dat betekent onder andere dat u weet dat u een ouder huis koopt en dat u de bouwkundige staat niet kunt vergelijken met nieuwe(re) woningen. De onderzoeksplicht van de koper gaat verder dan de mededelingsplicht van de verkoper. U heeft altijd de mogelijkheid de woning bouwkundig te keuren of u te laten bijstaan door een officiele aankoopmakelaar teneinde u te adviseren. Nadat de koopakte getekend is dient er een waarborgsom of bankgarantie door de koper te worden gesteld. Informeer bij uw bank of hypotheekadviseur want u kunt dit samen met uw hypotheekaanvraag regelen.
Plan een bezichtiging
voor: Europaplein 41 e
Bel ons op 058 760 0850 of WhatsApp via 06-51604155 voor direct contact.
Of laat uw gegevens achter en wij nemen zo snel mogelijk contact met u op.

