Opkeamer 6 Leeuwarden
- Home
- Opkeamer 6
omschrijving
vraagprijs
€ 625.000 Kosten koper
Kenmerken
| Type | Woonhuis |
|---|---|
| Hoofdfunctie | Woonruimte |
| Bouwvorm | bestaande bouw |
| Woonoppervlakte | 122 m² |
| Energielabel | A |
| Bouwperiode | 2010 |
Refresh to make it work.

omschrijving
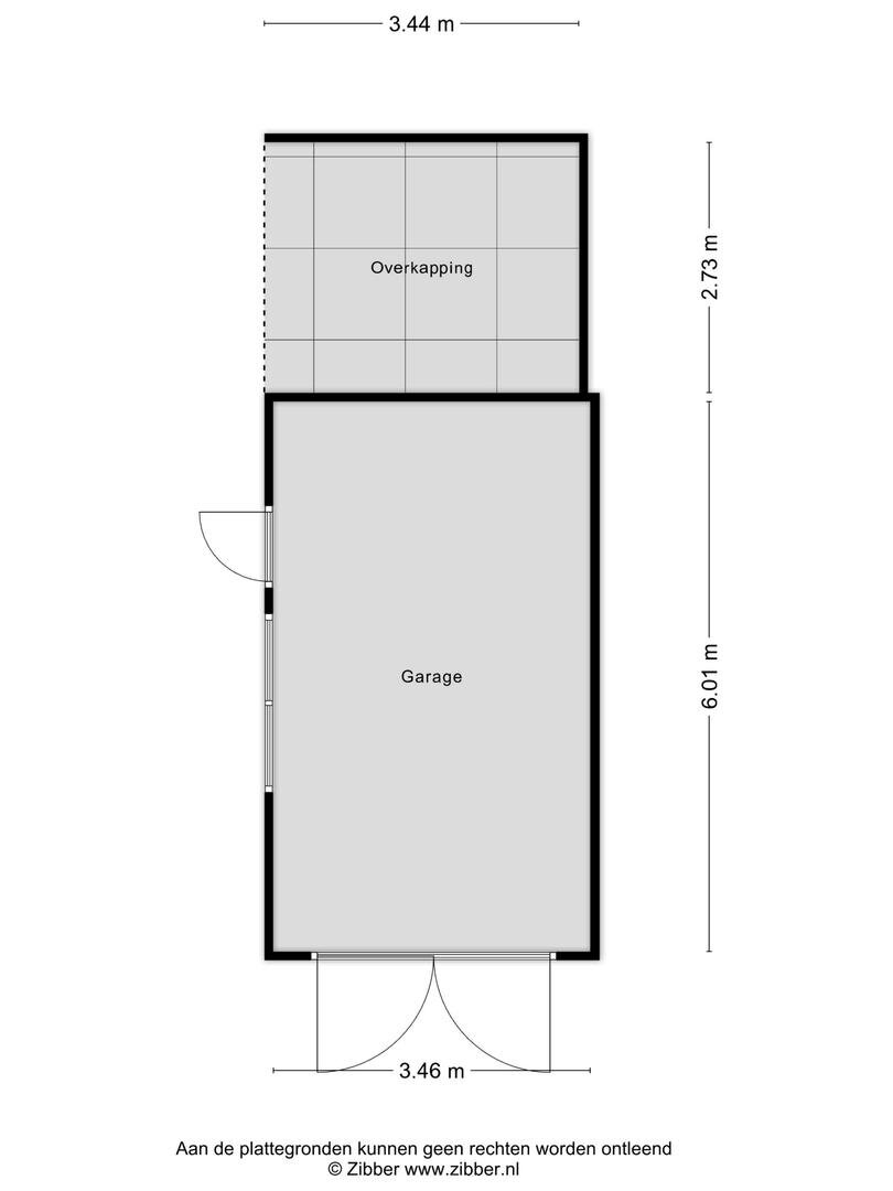
Op een mooie woonstand in de gewilde woonwijk "Techum" bieden wij te koop aan deze goed onderhouden VRIJSTAANDE WONING met GARAGE op een lekker ruim perceel van 521m2 eigen grond en 122m2 woonoppervlakte. De woning ligt in een rustige en verkeersluwe straat en de woonomgeving kenmerkt zich door fraaie vrijstaande woningen met veel groen en met karakteristieke en dorpse kenmerken. Aan het einde van de straat bevindt zich het open vaarwater (sloepenroute). De woning heeft een luxe uitstraling en een ruimtelijke indeling. Door de vele ramen is er veel en mooi lichtinval. Er is een aangebouwde serre/tuinkamer waar je heerlijk kunt zitten en welke toegang biedt tot de royale en verzorgd aangelegde tuin rondom de woning. Naast de woning staat een grote vrijstaande garage met dubbele, houten deuren en een vliering. Achter de garage is een gezellige veranda met zicht door de tuin en een sauna. Parkeren van de auto kan op eigen terrein.
De woning is gebouwd in 2010 en is volledig geisoleerd. Zo is er sprake van HR glas, dak- en vloerisolatie en de spouwmuren zijn ook geisoleerd. Verwarming van de woning vindt plaats via stadsverwarming op biogas en er is een WTW systeem. Op het dak liggen in totaal 16 eigen zonnepanelen (geplaatst in november 2020) welke jaarlijks ongeveer 4800kwh opleveren. Kortom, over de energielasten hoef je je geen zorgen te maken. Het energielabel van de woning is A.
Bekijk de uitvoerige fotopresentatie voor een volledige indruk van deze prachtige woning op een heerlijke woonstand! De plattegronden zijn beschikbaar in 2D en 3D en de maatvoeringen van alle vertrekken staan duidelijk vermeld. Interesse voor een bezichtiging? Maak een vrijblijvende bezichtigingsafspraak via ons makelaarskantoor.
INDELINGSOMSCHRIJVING
Begane grond: hal, meterkast, trapopgang, toiletruimte. Ruime woonkamer met luxe, open keuken en openslaande deuren naar de verzorgd aangelegde en zonnige tuin. Aangebouwde serre/tuinkamer met schuifwand-systeem. Inpandige bijkeuken met zij-deur. De volledige begane grond wordt verwarmd via vloerverwarming en een WTW-systeem. Vrijstaande, houten garage, veranda en sauna.
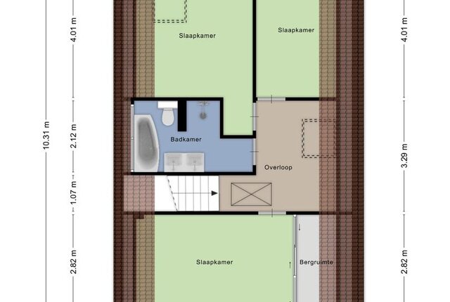
1e verdieping: ruime overloop met aangrenzend 3 slaapkamers en een complete badkamer met ligbad, inloopdouche, 2e toilet en wastafelmeubel. Op de ruime en lichte overloop bevindt zich een vlizotrap naar:
Vliering: veel opbergruimte onder het schuine dakvlak over de gehele lengte en breedte van de woning.
DISCLAIMER
De verkoopinformatie is door ons met de nodige zorgvuldigheid samengesteld. Onzerzijds wordt echter geen enkele aansprakelijkheid aanvaard voor enige onvolledigheid, onjuistheid of anderszins, dan wel de gevolgen daarvan. Aan de informatie kunnen geen rechten worden ontleend. U heeft altijd de mogelijkheid de woning bouwkundig te keuren of u te laten bijstaan door een officiele aankoopmakelaar teneinde u goed te laten adviseren. Nadat de koopakte getekend is dient er een waarborgsom of bankgarantie door de koper te worden gesteld. Informeer bij uw bank of hypotheekadviseur want u kunt dit samen met uw hypotheekaanvraag regelen.
TOELICHTINGSCLAUSULE NEN2580
De Meetinstructie is gebaseerd op de NEN2580. De Meetinstructie is bedoeld om een meer eenduidige manier van meten toe te passen voor het geven van een indicatie van de gebruiksoppervlakte. De Meetinstructie sluit verschillen in meetuitkomsten niet volledig uit, door bijvoorbeeld interpretatieverschillen, afrondingen of beperkingen bij het uitvoeren van de meting.
De woning is gebouwd in 2010 en is volledig geisoleerd. Zo is er sprake van HR glas, dak- en vloerisolatie en de spouwmuren zijn ook geisoleerd. Verwarming van de woning vindt plaats via stadsverwarming op biogas en er is een WTW systeem. Op het dak liggen in totaal 16 eigen zonnepanelen (geplaatst in november 2020) welke jaarlijks ongeveer 4800kwh opleveren. Kortom, over de energielasten hoef je je geen zorgen te maken. Het energielabel van de woning is A.
Bekijk de uitvoerige fotopresentatie voor een volledige indruk van deze prachtige woning op een heerlijke woonstand! De plattegronden zijn beschikbaar in 2D en 3D en de maatvoeringen van alle vertrekken staan duidelijk vermeld. Interesse voor een bezichtiging? Maak een vrijblijvende bezichtigingsafspraak via ons makelaarskantoor.
INDELINGSOMSCHRIJVING
Begane grond: hal, meterkast, trapopgang, toiletruimte. Ruime woonkamer met luxe, open keuken en openslaande deuren naar de verzorgd aangelegde en zonnige tuin. Aangebouwde serre/tuinkamer met schuifwand-systeem. Inpandige bijkeuken met zij-deur. De volledige begane grond wordt verwarmd via vloerverwarming en een WTW-systeem. Vrijstaande, houten garage, veranda en sauna.
1e verdieping: ruime overloop met aangrenzend 3 slaapkamers en een complete badkamer met ligbad, inloopdouche, 2e toilet en wastafelmeubel. Op de ruime en lichte overloop bevindt zich een vlizotrap naar:
Vliering: veel opbergruimte onder het schuine dakvlak over de gehele lengte en breedte van de woning.
DISCLAIMER
De verkoopinformatie is door ons met de nodige zorgvuldigheid samengesteld. Onzerzijds wordt echter geen enkele aansprakelijkheid aanvaard voor enige onvolledigheid, onjuistheid of anderszins, dan wel de gevolgen daarvan. Aan de informatie kunnen geen rechten worden ontleend. U heeft altijd de mogelijkheid de woning bouwkundig te keuren of u te laten bijstaan door een officiele aankoopmakelaar teneinde u goed te laten adviseren. Nadat de koopakte getekend is dient er een waarborgsom of bankgarantie door de koper te worden gesteld. Informeer bij uw bank of hypotheekadviseur want u kunt dit samen met uw hypotheekaanvraag regelen.
TOELICHTINGSCLAUSULE NEN2580
De Meetinstructie is gebaseerd op de NEN2580. De Meetinstructie is bedoeld om een meer eenduidige manier van meten toe te passen voor het geven van een indicatie van de gebruiksoppervlakte. De Meetinstructie sluit verschillen in meetuitkomsten niet volledig uit, door bijvoorbeeld interpretatieverschillen, afrondingen of beperkingen bij het uitvoeren van de meting.
Plan een bezichtiging
voor: Opkeamer 6
Bel ons op 058 760 0850 of WhatsApp via 06-51604155 voor direct contact.
Of laat uw gegevens achter en wij nemen zo snel mogelijk contact met u op.




