Pasteurweg 48 Leeuwarden
- Home
- Pasteurweg 48
omschrijving
vraagprijs
€ 349.500 Kosten koper
Kenmerken
| Type | Woonhuis |
|---|---|
| Hoofdfunctie | Woonruimte |
| Bouwvorm | bestaande bouw |
| Woonoppervlakte | 114 m² |
| Energielabel | C |
| Bouwperiode | 1939 |
Refresh to make it work.

omschrijving
Op fraaie woonstand aan het Dr. Zamenhofpark bieden wij te koop aan deze robuuste, degelijk gebouwde en charmante hoekwoning met een eigen garage op totaal 225m2 eigen grond. De woning heeft nog diverse authentieke elementen en straalt de typische en gewilde jaren '30 sfeer uit. Het is een ideale woning voor een gezin want er zijn totaal nu 3 slaapkamers, maar op de grote zolder is een 4e of 5e slaapkamer prima mogelijk. Voor het opbergen van spullen of het stallen van een motor of auto is de aangebouwde garage perfect. Deze garage kan ook goed worden gebruikt voor een hobby aan huis. Kortom, de ideale gezinswoning voor jou!
De voor- en zijtuin zijn verzorgd aangelegd en liggen op een ideale zonnestand. Er is ook nog een beschutte achterplaats en een heerlijk dakterras waar je prima kunt vertoeven.
De woning heeft energielabel C en wordt verwarmd door middel van een eigen CV ketel met radiatoren en er liggen 10 zonnepanelen op het dak. Er is sprake van spouwmuur-, dak- en vloerisolatie. Er zijn mogelijkheden de woning in de (nabije) toekomst verder te verduurzamen waaronder een hybride ketel met warmtepomp in combinatie met vloerverwarming. Dat hoeft natuurlijk niet, maar voor de toekomst zeker is om over na te denken.
INDELINGSOMSCHRIJVING
Begane grond:
Fraaie en klassieke zij- entree, hal, toilet, trapopgang en toegang tot de kelder. Royale woonkamer, onderverdeeld in een voor- en achterkamer en een zijkamer. De woning heeft een fraaie erker met prachtig uitzicht, een schouw met potkachel (ter overname) en dubbele tuindeuren in de achtergevel met toegang naar de beschutte achterplaats. Dichte, sfeervolle keuken en doorloop naar de ruime garage met dubbele deuren en een oprit. De afmeting van de garage is 510cm x 238cm. Hier bevindt zich ook de opstelplaats voor de CV-ketel, wasmachine en de wasdroger.
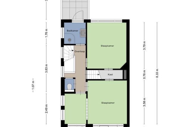
1e Verdieping:
Overloop met aangrenzend een drietal slaapkamers en een 2e toilet. De kleinste slaapkamer aan de voorkant is momenteel bij de ouderslaapkamer gevoegd maar kan vrij eenvoudig weer worden teruggebracht tot de originele slaapkamer. De ouderslaapkamer heeft vaste kastruime en toegang tot het balkon aan de voorkant. De achterste slaapkamer heeft ook vaste kastruimte. De badkamer is voorzien van een douche en vaste wastafel en een deur naar het droogplat/dakterras. Vaste trap naar:
2e Verdieping:
Ruime zolder met een geisoleerde kap met dakramen en veel opbergruimte. Op deze verdieping kunnen vrij eenvoudig 1 of 2 extra slaapkamers worden gerealiseerd. Ook is er een vaste wastafel aanwezig.
***** nog vermelden: glas in lood ramen / authentieke tegels en granito vloer in de hal / keuken met buffetkast
HOOFDtuin ligt op het Zuidwesten
Toelichtingsclausule NEN2580
De Meetinstructie is gebaseerd op de NEN2580. De Meetinstructie is bedoeld om een meer eenduidige manier van meten toe te passen voor het geven van een indicatie van de gebruiksoppervlakte. De Meetinstructie sluit verschillen in meetuitkomsten niet volledig uit, door bijvoorbeeld interpretatieverschillen, afrondingen of beperkingen bij het uitvoeren van de meting.
Ouderdomsclausule en bankgarantie/waarborgsom
In de koopakte wordt bij woningen die ouder zijn dan 30 jaar altijd de ouderdomsclausule opgenomen. Dat betekent onder andere dat u weet dat u een ouder huis koopt en dat u de bouwkundige staat niet kunt vergelijken met nieuwe(re) woningen. De onderzoekplicht van de koper gaat in dat geval verder dan de mededelingsplicht van de verkoper. U heeft altijd de mogelijkheid de woning bouwkundig te keuren of u te laten bijstaan door een officiele aankoopmakelaar teneinde u te adviseren. Nadat de koopakte getekend is dient er een waarborgsom of bankgarantie door de koper te worden gesteld. Informeer bij uw bank of hypotheekadviseur want u kunt dit samen met uw hypotheekaanvraag regelen.
De voor- en zijtuin zijn verzorgd aangelegd en liggen op een ideale zonnestand. Er is ook nog een beschutte achterplaats en een heerlijk dakterras waar je prima kunt vertoeven.
De woning heeft energielabel C en wordt verwarmd door middel van een eigen CV ketel met radiatoren en er liggen 10 zonnepanelen op het dak. Er is sprake van spouwmuur-, dak- en vloerisolatie. Er zijn mogelijkheden de woning in de (nabije) toekomst verder te verduurzamen waaronder een hybride ketel met warmtepomp in combinatie met vloerverwarming. Dat hoeft natuurlijk niet, maar voor de toekomst zeker is om over na te denken.
INDELINGSOMSCHRIJVING
Begane grond:
Fraaie en klassieke zij- entree, hal, toilet, trapopgang en toegang tot de kelder. Royale woonkamer, onderverdeeld in een voor- en achterkamer en een zijkamer. De woning heeft een fraaie erker met prachtig uitzicht, een schouw met potkachel (ter overname) en dubbele tuindeuren in de achtergevel met toegang naar de beschutte achterplaats. Dichte, sfeervolle keuken en doorloop naar de ruime garage met dubbele deuren en een oprit. De afmeting van de garage is 510cm x 238cm. Hier bevindt zich ook de opstelplaats voor de CV-ketel, wasmachine en de wasdroger.
1e Verdieping:
Overloop met aangrenzend een drietal slaapkamers en een 2e toilet. De kleinste slaapkamer aan de voorkant is momenteel bij de ouderslaapkamer gevoegd maar kan vrij eenvoudig weer worden teruggebracht tot de originele slaapkamer. De ouderslaapkamer heeft vaste kastruime en toegang tot het balkon aan de voorkant. De achterste slaapkamer heeft ook vaste kastruimte. De badkamer is voorzien van een douche en vaste wastafel en een deur naar het droogplat/dakterras. Vaste trap naar:
2e Verdieping:
Ruime zolder met een geisoleerde kap met dakramen en veel opbergruimte. Op deze verdieping kunnen vrij eenvoudig 1 of 2 extra slaapkamers worden gerealiseerd. Ook is er een vaste wastafel aanwezig.
***** nog vermelden: glas in lood ramen / authentieke tegels en granito vloer in de hal / keuken met buffetkast
HOOFDtuin ligt op het Zuidwesten
Toelichtingsclausule NEN2580
De Meetinstructie is gebaseerd op de NEN2580. De Meetinstructie is bedoeld om een meer eenduidige manier van meten toe te passen voor het geven van een indicatie van de gebruiksoppervlakte. De Meetinstructie sluit verschillen in meetuitkomsten niet volledig uit, door bijvoorbeeld interpretatieverschillen, afrondingen of beperkingen bij het uitvoeren van de meting.
Ouderdomsclausule en bankgarantie/waarborgsom
In de koopakte wordt bij woningen die ouder zijn dan 30 jaar altijd de ouderdomsclausule opgenomen. Dat betekent onder andere dat u weet dat u een ouder huis koopt en dat u de bouwkundige staat niet kunt vergelijken met nieuwe(re) woningen. De onderzoekplicht van de koper gaat in dat geval verder dan de mededelingsplicht van de verkoper. U heeft altijd de mogelijkheid de woning bouwkundig te keuren of u te laten bijstaan door een officiele aankoopmakelaar teneinde u te adviseren. Nadat de koopakte getekend is dient er een waarborgsom of bankgarantie door de koper te worden gesteld. Informeer bij uw bank of hypotheekadviseur want u kunt dit samen met uw hypotheekaanvraag regelen.
Plan een bezichtiging
voor: Pasteurweg 48
Bel ons op 058 760 0850 of WhatsApp via 06-51604155 voor direct contact.
Of laat uw gegevens achter en wij nemen zo snel mogelijk contact met u op.



